首頁 > 房屋出售 > 誠昱/崇善商圈孝親裝潢車庫透天
第一房屋仲介 - 誠昱/崇善商圈孝親裝潢車庫透天

誠昱/崇善商圈孝親裝潢車庫透天

透天/別墅      1980萬

系統編號

物件區域
701台南市東區

物件地址
崇善十一街

地坪
17.84 坪

總建坪
33.39 坪

室內坪數
33.39 坪

主建物坪
33.39 坪

總樓層
3 樓

位於樓層
1~3 樓

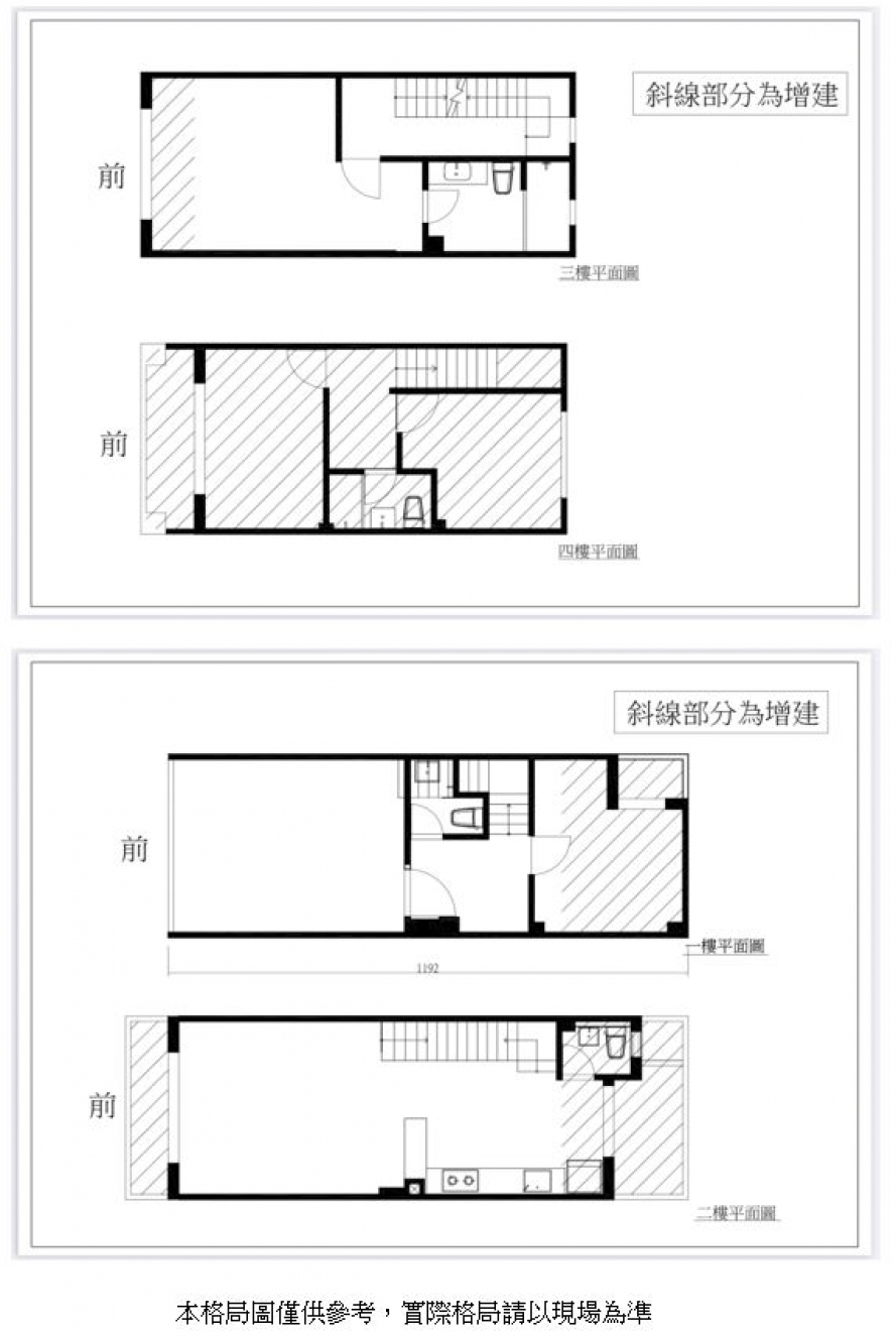
格局
4房2廳4衛4陽台

採光面數
2 面採光

建物結構
鋼骨鋼筋混凝土(SRC)

建築完工
1979年 屋齡約47年

臨路寬度
約8 米路

鄰近市場
仁和市場

公園綠地
社區公園

特色說明
1.整棟重新整理+增建,實際使用
2.空間大幅提升,格局方正,動線佳
3.一樓孝親房+有天井+二樓延伸露台
4.屋內保有自然光,乾爽不潮溼
5.仁和商圈,生活機能完整,採買便利
6.崇善商圈近學區,外食方便,診所林立,生活便利滿分

※以上資訊如有記載錯誤,一律依謄本登記簿為準

 - 誠昱/崇善商圈孝親裝潢車庫透天
 - 誠昱/崇善商圈孝親裝潢車庫透天
 - 誠昱/崇善商圈孝親裝潢車庫透天
 - 誠昱/崇善商圈孝親裝潢車庫透天
 - 誠昱/崇善商圈孝親裝潢車庫透天
 - 誠昱/崇善商圈孝親裝潢車庫透天
 - 誠昱/崇善商圈孝親裝潢車庫透天
 - 誠昱/崇善商圈孝親裝潢車庫透天
 - 誠昱/崇善商圈孝親裝潢車庫透天
 - 誠昱/崇善商圈孝親裝潢車庫透天
 - 誠昱/崇善商圈孝親裝潢車庫透天
 - 誠昱/崇善商圈孝親裝潢車庫透天
 - 誠昱/崇善商圈孝親裝潢車庫透天
 - 誠昱/崇善商圈孝親裝潢車庫透天
推薦物件...

誠昱/佳里都市計畫旁農地

誠昱/佳里都市計畫旁農地
558 萬

誠昱/仁德如意段都內農地

誠昱/仁德如意段都內農地
3135 萬

誠昱/海佃國中大面寬黃金.

誠昱/海佃國中大面寬黃金.
1880 萬

誠昱/大灣高中挑高明亮3.

誠昱/大灣高中挑高明亮3.
598 萬

誠昱/永康交流道大面寬甲.

誠昱/永康交流道大面寬甲.
4380 萬

誠昱/近南科全新邊間雙併.

誠昱/近南科全新邊間雙併.
2530 萬

誠昱/近永大夜市都內農地.

誠昱/近永大夜市都內農地.
4088 萬

誠昱/鹽水月津帝居全新車.

誠昱/鹽水月津帝居全新車.
1298 萬


更多..
地圖
分享到臉書